物件詳細

ウィズステージププレⅠ 201号室 浜松市中央区大平台[アパート]

ウィズステージププレⅠ 201号室 浜松市中央区大平台[アパート]の物件詳細ページです。

物件種別:アパート

お問い合わせ番号:R-63-0000116577

間取り(面積)

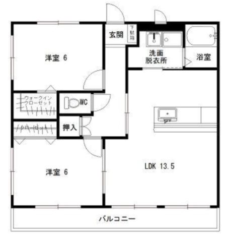
2LDK

( 59.62㎡)

賃料(管理費等)

6.0万円

( 0円)

交通: 東海道本線(東海) 高塚駅 徒歩41分

敷金/礼金: -/ -

保証金/敷引/償却金: -/ -/ -

所在地: 浜松市中央区大平台

築年月: 2001年11月

ポイント

人気の対面キッチン!生活に便利な立地♪

問い合わせ(無料)

TEL: 053-454-2271

お問い合わせ番号: R-63-0000116577

QRコード

資料請求などはこちら

問い合わせ(無料)

TEL: 053-454-2271

お問い合わせ番号: R-63-0000116577

スタッフからのコメント

★☆静岡県西部のお部屋探しは地元密着・信頼の『遠鉄の不動産』におまかせ☆★お気軽にお問合せください!!

セールスポイント

特徴 最上階,上階無し,2F以上,保証人(不要),カード決済可(入居時費用)
設備 対面式キッチン,バス・トイレ別,バス有,追い焚き風呂,シャワー,トイレ有,シャワー付洗面台,エアコン,室内洗濯機置場,ウォークインクローゼット,押入,ガス(プロパン),電気
エレベーター 空調 1基
駐車場 駐車場:有(敷地内) 5000円/月~ 駐車可能台数(2台) 駐輪場:有
周辺施設 スーパー:遠鉄ストア 大平台店 681m
コンビニ:セブンイレブン 浜松大平台2丁目店 152m
ショッピング施設:イオン浜松西ショッピングセンター 2791m
郵便局:浜松神久呂郵便局 1863m
総合病院:佐鳴湖病院 3501m
銀行:浜松信用金庫 入野支店 大平台出張所 542m
公園:佐鳴湖公園 1243m
幼稚園:大平台わかくさ保育園 681m

物件概要

物件名 ウィズステージププレⅠ 201号室
物件所在地 静岡県浜松市中央区大平台3丁目2-1 周辺地図
交通機関 東海道本線(東海) 高塚駅 徒歩41分
【バス】大平台線(広沢・医療センター経由) 大平台1丁目 バス停徒歩3分
【バス】大平台線(広沢・医療センター経由) 佐鳴湖西岸北 バス停徒歩5分
間取り詳細 洋室(6畳) 洋室(6畳) LDK(13.5畳)
専有面積 59.62㎡
所在階/地上階数 2/ 2 部屋向き
建物構造 鉄骨 築年月 2001年11月
総戸数 4
賃料 6.0万円 管理費等 0円
その他一時金 退去時修繕費:70,000円 その他費用
その他月次費用 NPサポート:1,320円
損害保険 有 損保名称:管理会社指定 料金:20000円 損保期間:24ヶ月 
契約形態 普通借家契約 期間 契約期間:2年
保証会社 必須 初回保証料:月額賃料等の50%、毎月引落手数料:660円、更新料:10,000円/年 保証人代行 必須
現況 退去予定 入居時期 予定 2026年3月中旬
入居条件 ペット(不可)
IT重説

その他

取引態様 仲介先物 自社管理番号 R-63-0000116577
情報更新日 2025年12月29日 次回更新予定日 2026年1月28日
不動産会社コード 2102888 物件管理コード 1117658408900000907012
  • ※間取りの「S」はサービスルーム(納戸)です。
  • ※QRコードは(株)デンソーウェーブの登録商標です。

資料請求などはこちら

問い合わせ(無料)

TEL: 053-454-2271

お問い合わせ番号: R-63-0000116577

お問い合わせ先:遠州鉄道株式会社 遠鉄の不動産 浜松店

所在地 : 静岡県浜松市中央区八幡町15-5
TEL : 053-454-2271
免許番号 : 静岡県知事(16)第1059号

この部屋を見学予約

ホームへ戻る