ヴィラアクティC 浜松市中央区安松町[戸建]

ヴィラアクティC 浜松市中央区安松町[戸建]

戸建[浜松市中央区安松町]

会員の方

閉じる

棟詳細

ヴィラアクティC 浜松市中央区安松町 戸建

ヴィラアクティC 浜松市中央区安松町[戸建]の棟詳細ページです。

物件種別:戸建

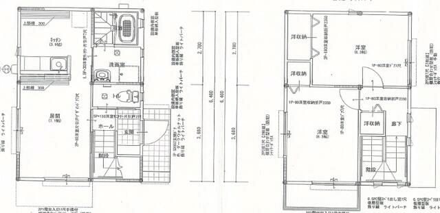
間取り(面積)

2LDK

( 60.2㎡)

賃料

7.8万円

交通: 東海道本線(東海) 天竜川駅 徒歩33分

所在地: 浜松市中央区安松町

築年月: 2007年3月

管理費等の月次金がかかることがあります。詳細は各部屋のページでご確認ください。

ポイント

人気の戸建物件です。設備充実!☆★お問い合わせは地元密着・信頼の『遠鉄の不動産』まで★☆

  • リビング

  • ※代表的なお部屋の写真と物件情報になります。タイプによっては一部仕様・眺望等が異なる場合があります。
  • ※お部屋により現況と異なる場合は現況を優先いたします。



所在地 静岡県浜松市中央区安松町1864 周辺地図
交通 東海道本線(東海) 天竜川駅 徒歩33分
【バス】6 遠鉄ストア西伝寺店西 バス停徒歩5分
【バス】6 本郷北 バス停徒歩6分
賃料 7.8万円
築年月 2007年3月 (築18年)
延床面積 60.2㎡ (18.21坪)
建物構造 軽量鉄骨 登録空きフロア計 60.2㎡ (18.21坪)
総戸数 規模 2階建/ -



所在階 賃料 管理費/共益費 敷金/礼金 間取り 専有面積 詳細

1-2階 7.8万円

-

/ 0円

1ヶ月

/ -

2LDK

60.2㎡

(18.21坪)

ヴィラアクティC の詳細ページ


  • ※間取りの「S」はサービスルーム(納戸)です。

ホームへ戻る